Venta de Casa en Cuautla Morelos
Valor de 3.5 MDP
Cuautla Morelos
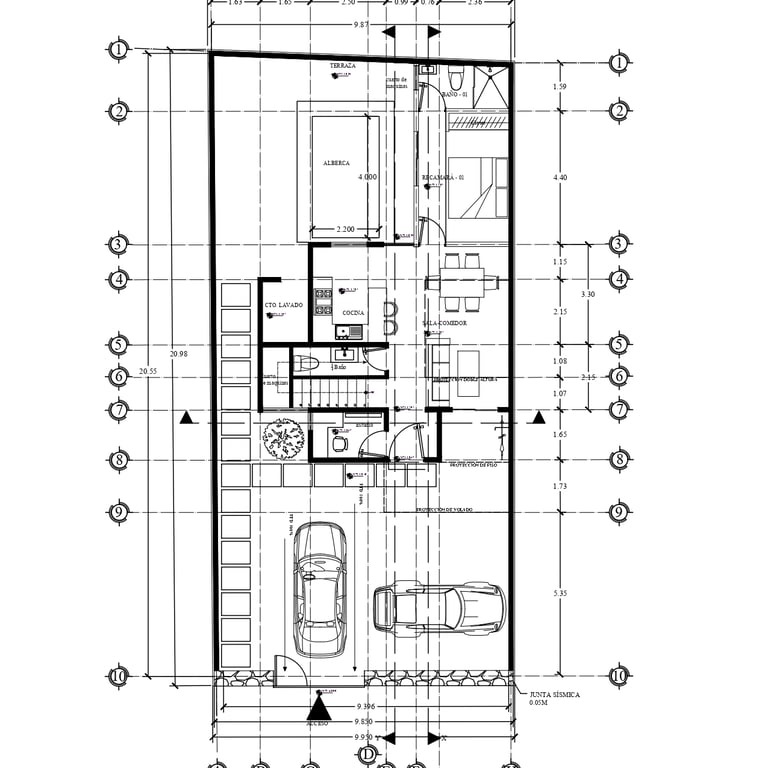
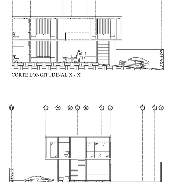
Planta Baja
JARDÍN PRINCIPAL
ESTACIONAMIENTO (2) AUTOS
ESTANCIA (DOBLE ALTURA)
COMEDOR
ESTUDIO
COCINA
1/2 BAÑO
PATIO DE SERVICIO
ESCALERAS
RECAMARA (CON BAÑO)
ALBERCA
JARDIN TRASERO
Costo Total de la Casa : $ 3,500,000.
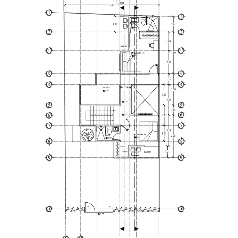
RECAMARA PRINCIPAL (CON BAÑO Y BALCÓN)
VESTÍBULO
RECÁMARA 1 (CON BAÑO Y BALCÓN)
RECÁMARA 2 (CON BAÑO Y BALCÓN)
TERRAZA
Nivel 1
170 M2 Construcción
209.00 M2 Terreno


La propiedad está ubicada en una zona tranquila y bien iluminada, con un bajo índice de criminalidad, lo que garantiza un ambiente seguro para ti y tu familia.
Viviendo con Confianza y Seguridad.
La casa se encuentra frente a la autopista Cuautla-Izúcar de matamoros en una ubicación estratégica que ofrece comodidad y acceso a una variedad de servicios esenciales.
Supermercados y Centros Comerciales facilita tus compras y te permite disfrutar de una amplia oferta de productos y servicios, todo sin tener que recorrer largas distancias.
Balnearios y Zonas Recreativas, ideales para disfrutar de momentos de descanso y diversión en contacto con la naturaleza.
Hospitales, garantizando que la atención médica de calidad esté siempre a tu alcance, brindando tranquilidad y seguridad para ti y tu familia.
Ubicación Privilegiada.
Galería



VIDEO RECORRIDO VIRTUAL

Créditos Aceptados
Aceptamos diversas opciones de financiamiento para facilitar la compra de tu nuevo hogar.
Los tipos de créditos que aceptamos son:








CFE
INFONAVIT
FOVISSSTE
BANCARIO
Encuentra el Hogar Perfecto
Agenda Tu Visita Hoy
Contáctanos
arqui.deluxe@gmail.com
735 459 5277
© 2024. All rights reserved.